schönherr.fabrik - Eventkantine

CoWerk – Eventkantine

schönherr.fabrik Chemnitz | Ausbau- und Modernisierungskonzepte

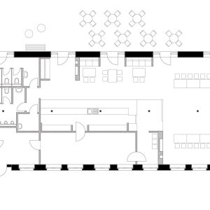
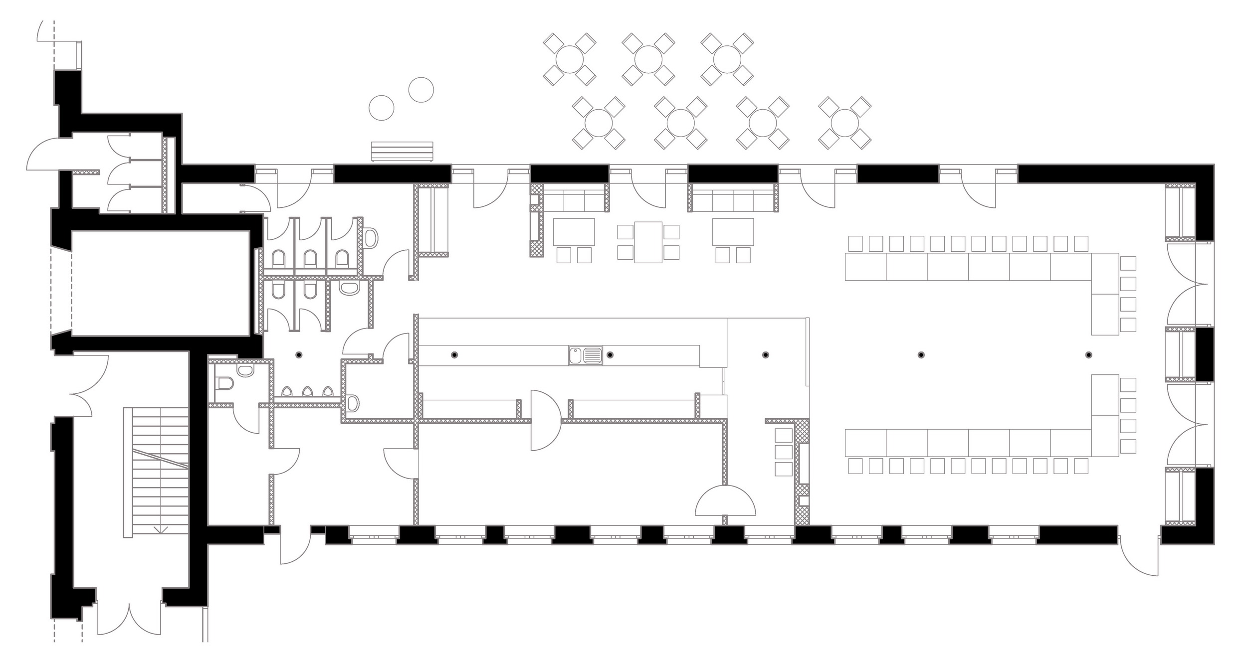
Das Konzept für die schönherr Eventkantine zeigt Vorschläge zur Neugestaltung und Modernisierung der bestehenden Räume in der schönherr.fabrik Chemnitz mittels Varianten zu Möblierung, Farbe, Materialität sowie Produktvorschläge zur Beleuchtung und Bestuhlung auf. Wichtiger Themenschwerpunkt der Studie war die Schaffung eines Bezuges der Räumlichkeit zum Ort. Historische Aufnahmen des Areals werden hinterleuchtet inszeniert, textlich beschreiben und integriert in Einbaumöbel, welche als Garderobe oder Schrankraum dienen. Ziel ist es, alle funktionalen Anforderungen der flexiblen Nutzung als Gastronomie- und Veranstaltungsfläche zu erfüllen und darüber hinaus individuelle Details mit Wiedererkennung zu schaffen, die dem Gast in Erinnerung bleiben und die Räumlichkeit mit dem Standort verbinden.

 
Ausbaufläche: ca. 280 m²
Planungszeitraum: 2011 - 2014
Leistungsumfang: Ausbau- und Modernisierungskonzepte