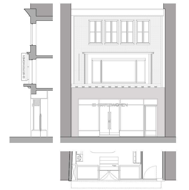
G-STAR WOMEN Store Dortmund, Westenhellweg

Ausbau von 2 Etagen des Gebäudes Westenhellweg 100 und Herstellung einer neuen Straßenfassade im Erdgeschoß.

ca. 155m²

2014

Baugenehmigung /// Ausführungsplanung /// Bau- & Projektleitung